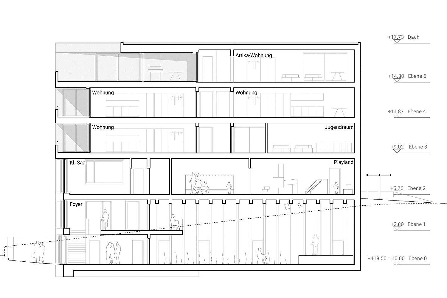
| Programm | Veranstaltungssaal, Kita, Büros, Seminarraum, Wohnungen |
| Standort | Pfannenstielstrasse, Meilen |
| Auftragsart | Projektwettbewerb |
| Auftraggeber | Chrischona Meilen |
| Termine | Wettbewerb 2018 |
Die Liegenschaft befindet sich in der Schnittstelle zwischen dem zentrumsnahen Bahnhof, dem Gewerbegebiet im Westen und den nördlich und östlich angrenzenden Wohnzonen Meilens. Wie die mittelalterliche Burg Friedberg, die das Meilener Wappen schmückt, soll der Neubau der Chrischona Meilen einen starken, soliden und prägenden Charakter gegenüber dem Stadtzentrum und See, wie auch gegenüber den Wohnquartieren ausstrahlen. Die Positionierung des Neubaus ist bewusst mit einem Abstand zum Bahnweg gewählt, um einen einladenden, öffentlichen Vorplatz und Aussensitzplatz zu ermöglichen und um dem Knotenpunkt von Unterführung, Velo- und Fussgängerwege gerecht zu werden. Die städtebauliche Bedeutung des Neubaus hat „Portalcharakter“ und bildet von Osten betrachtet den Anfangspunkt des sich zunehmend dichter entwickelnden Zentrumsgebiets.