| Auftragsart | Studienauftrag auf Einladung |
| Programm | Umbau, Erweiterung und Ersatzneubau zweier Wohngebäude |
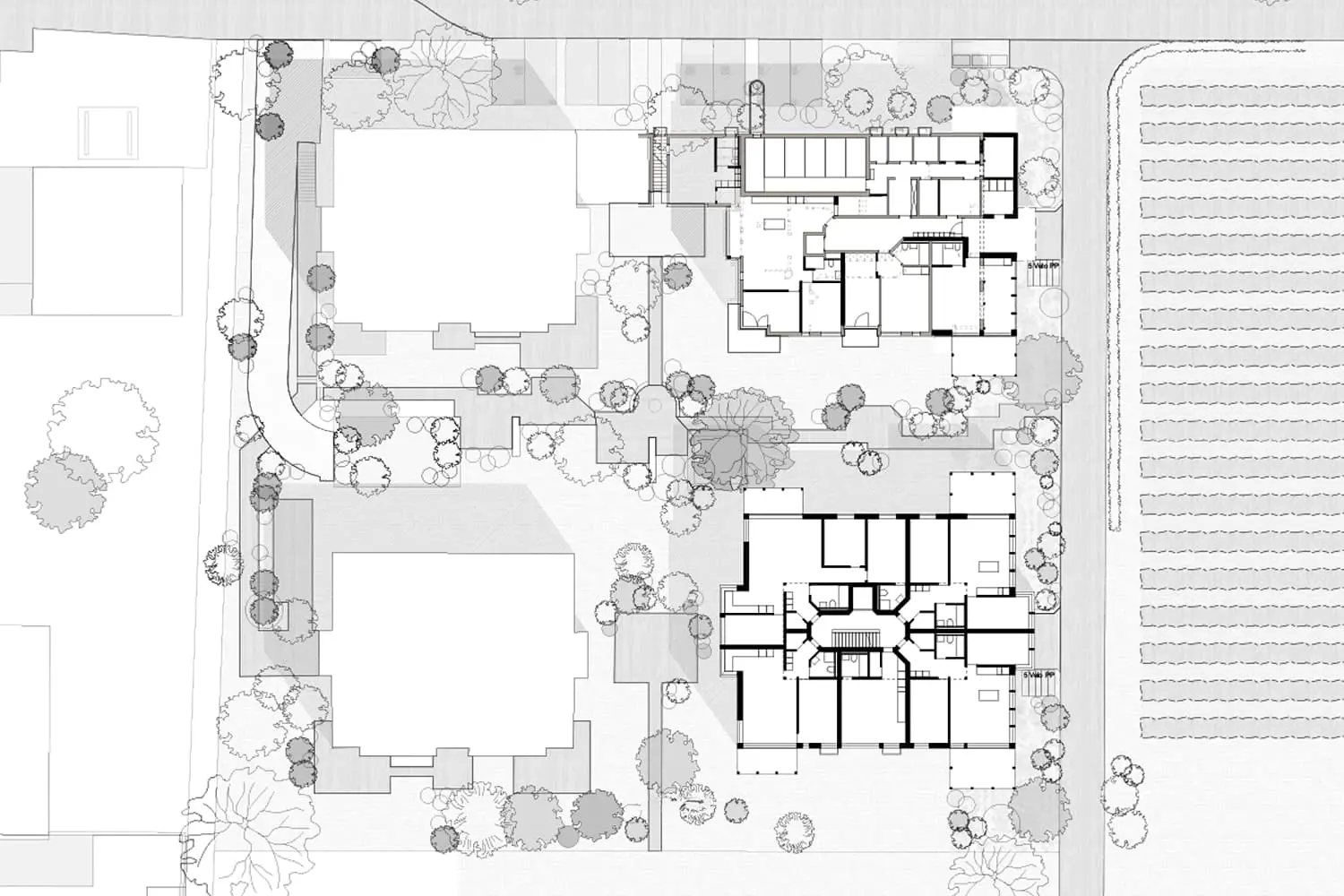
| Standort | Giblenstrasse, Zürich-Höngg |
| Bauherrschaft | Private Auftraggeberschaft |
| Termine | Wettbewerb 2025 |
Die Giblenstrasse ist seit den 1920er-Jahren als Verbindung durch die landwirtschaftlich geprägte Hanglandschaft von Höngg belegt. Rebhänge, Felder und der Frankenbühlwald prägen bis heute den Übergang zwischen Siedlung und Kulturlandschaft und verleihen dem Ort eine eigenständige räumliche Identität. Das bestehende Wohnensemble aus den 1980er-Jahren wird in seiner Grundstruktur erhalten und gezielt weiterentwickelt. Die Eingriffe reagieren auf die Topografie und stärken den Bezug zur umliegenden Landschaft. Zentrale Massnahme ist die Ergänzung einer verglasten Raumschicht an der Ostseite, die den Gebäuden neue Sonnenzimmer hinzufügt und die Wohnungen zum Landschaftsraum öffnet. Ergänzend dazu werden bestehende Fassaden präzise geöffnet und konstruktiv verstärkt, um Alt und Neu räumlich zu verbinden. Die Aufstockung erfolgt in leichter Bauweise, vorzugsweise in Holz, um die zusätzliche Belastung der bestehenden Struktur gering zu halten. Neue Bauteile fügen sich zurückhaltend ein und machen die Eingriffe ablesbar. Grundrisse und Erschliessungen bleiben in ihrer Logik erhalten und werden an heutige Anforderungen angepasst. Der Umbau schont die vorhandene Substanz, reduziert den Materialeinsatz und führt das Ensemble mit klaren, dauerhaften Mitteln weiter.